專注聯軸器研發與制造 打造聯軸器行業領軍品牌
TARM系列膜盤聯軸器產品介紹:
★高速低扭矩膜盤聯軸器,重量更輕,附加彎矩更小,高轉速動態性能更好;
★中間膜盤組件整體組裝出廠,安裝方便,動平衡特性高,是各流程動力設備的首選;
★角向補償0.25°,可滿足一般設備的要求;驅動螺栓采用高強度合金鋼,頭部采用12角頭法蘭面螺栓,螺栓強度和壽命高。
★設有調整墊片,方便現場安裝和調節距離。

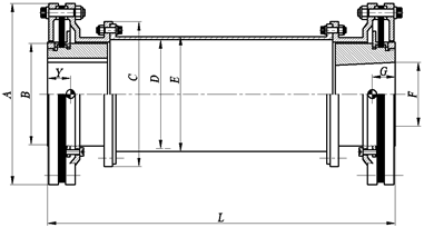
主要尺寸和性能技術數據表

◆聯軸器長度L是根據使用性能推薦的標準值,可按用戶要求設計。其它尺寸的L值,其扭轉剛度、轉動慣量等應另算;
◆徑向不對中數值是角向不對中和中間節長度的函數,可近似按正切函數推倒;
◆對于有熱膨脹的機組,安裝時應考慮冷態預拉伸量,使撓性元件工作在較小的變形區間,提高使用壽命;
◆有任何疑問和其它需求,歡迎向天碩銷售工程師咨詢。